• 糖心LOGO官方网站在线观看,糖心VLOG官网在线,糖心视频APP污下载,糖心VLOG新官网入口

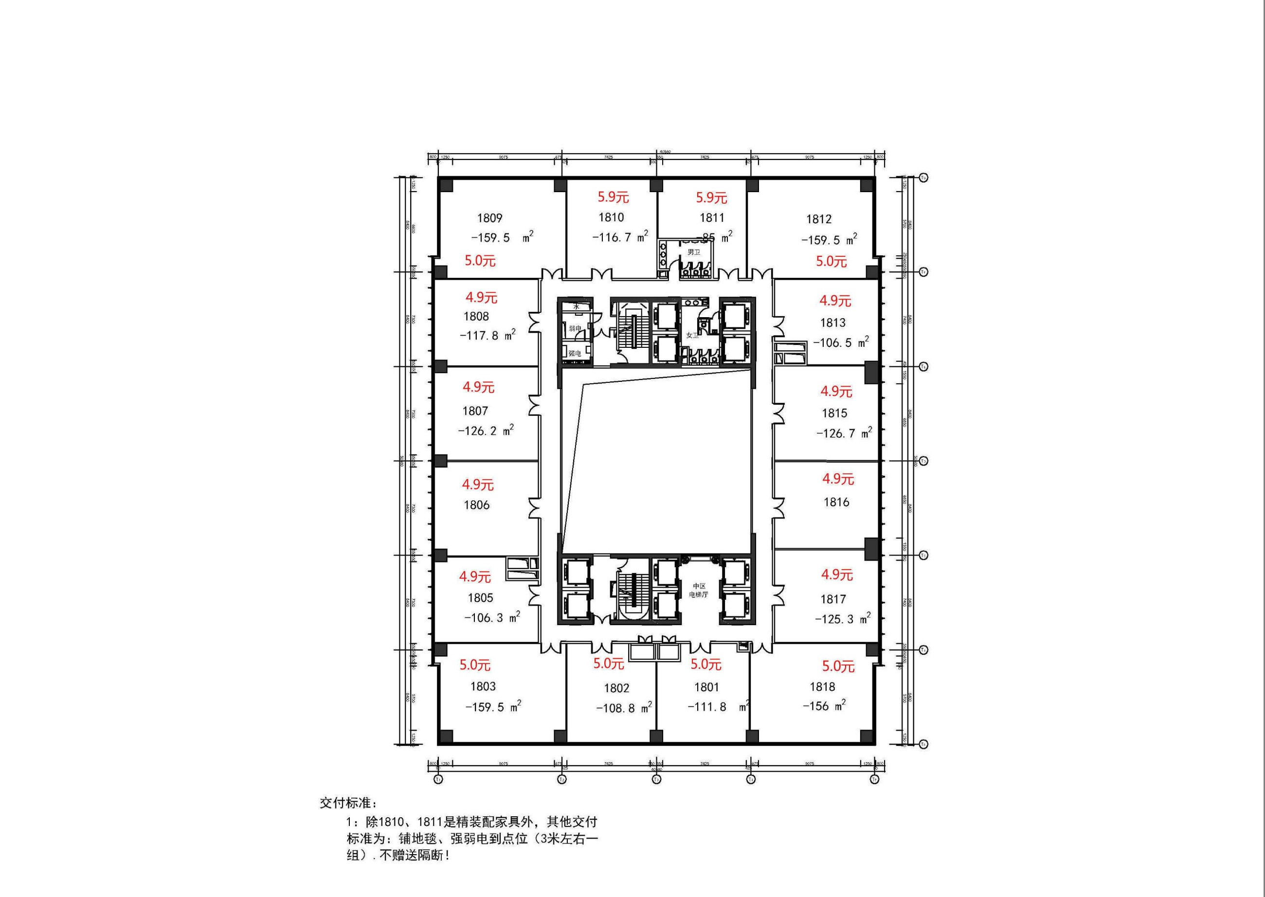
    莘庄龙之梦 363方带装修家具适合多种公司

    分享
    5.30 万元/月
    • 单价:4.8元/㎡/天
    • 物业费:30.0元/㎡/月
    363㎡
    建筑面积
    30-40人
    容纳工位
    带装修家具
    装修
    • 闵 行 -莘庄商务区
    • 1号线-莘庄、5号线-莘庄
    • 莘庄龙之梦

    房源专属顾问为您服务

    江帅军Evan

    13052210023
    预约看房

    公共交通

    Public transit

    莘庄龙之梦

    闵 行 莘庄商务区沪闵路6088号

    网站地图